電話:0318-7965866
電話:0318-7985898
15832822183(馮經理)
13313085808(王經理)
廠址:河北省安平絲網工業園II區6號
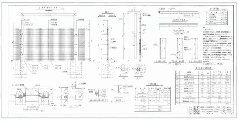
鋼筋混凝土立柱金屬網柵欄圖紙【2019版】
添加時間:2020-10-11 點擊量:
鋼筋混凝土立柱金屬網柵欄圖紙【2019版】,是中鐵上海局鐵路線路防護柵欄標志圖,下面為金屬網柵欄圖紙(圖一,圖二):

金屬網柵欄圖一

金屬網柵欄圖二

金屬網柵欄圖三(實物圖)
標簽: 框架護欄網上海嘉定項目工程案例、 鐵路橋下防護柵欄、 機場圍欄網、 內蒙古烏拉特中旗油井護欄網工程、 鐵絲網隔離柵、 沖孔網護欄、 雙邊絲護欄網、 刺繩護欄網、 桃型柱護欄網、 鐵路橋下防護柵欄、




蚌埠C型柱隔離柵
蚌埠金河口旅游風景區圍欄工程
蚌埠安徽皖西當代運動場圍網工程
蚌埠鋼板網護欄 